APARTAMENTO RE
Localização:
Porto Alegre l Rio Grande do Sul l Brasil
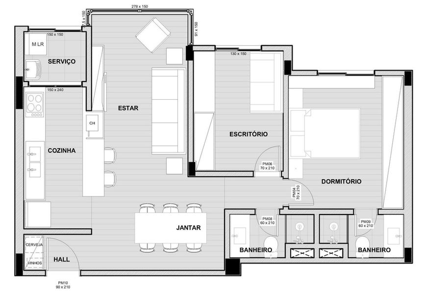
Área: 64m²
Ano de Conclusão: 2017
Fotografia: Marcelo Donadussi
É no coração do bairro Bom Fim, simpático bairro de Porto Alegre, que se localiza este apartamento que foi totalmente remodelado para um jovem casal de médicos. Eles já ocupavam o apartamento há algum tempo e resolveram investir na reforma para integrar a cozinha com a sala, modernizar os espaços e organizar a grande quantidade de elementos que fazia parte do cotidiano do casal. Reposicionamos o acesso da cozinha, reformamos os banheiros com baixo custo e usamos o escritório como volume conector entre o íntimo e o social. O uso da cor e de algumas prateleiras que circundam este volume como forma de apoio de quadros, objetos e livros fazem com que tenhamos logo a percepção de que ali esta o coração do projeto. Os interesses do casal por música, literatura, filmes e obviamente pelo lindo cachorro o “Pacha” está estampada na grande arte da Suyê, artista gaúcha que convidamos para fazer o mural da parede de entrada. O resultado é um equilíbrio entre cores e elementos que altera a forma como percebemos os espaços do apartamento, tornando-o mais organizado, prático e bonito!





























